aaaaaaaaaaaaaaa
aaaaaaaaaaaaaaa
ARQUITECTURA y URBANISMO Ana María Gómez Barderas
ARQUITECTURA y URBANISMOAna María Gómez Barderas

CONCURSOS

2022

 

PARQUE MANUEL AZAÑA EN ALCALÁ DE HENARES

 

 

2021

 

NUEVA RESIDENCIA PARA MAYORES EN GUADALAJARA

 

El objeto del proyecto es en la rehabilitación y ampliación del antiguo hospital Ortiz de Zárate en Guadalajara, para nuevo centro de mayores, según tipología de Gran Residencia.

2013

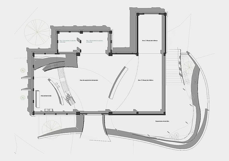
CONCURSO DE IDEAS PARA REHABILITACIÓN DEL ANTIGUO ALMACÉN 5 DE LA FÁBRICA DE CEMENTO LAFARGUE.

Villaluenga de la Sagra (Toledo)

Proyecto de rehabilitación de edificio Entrada al edificio reformado

ESTADO ACTUAL

A partir de los años 60 se inicia un periodo de uso como almacén de material que se prolonga hasta la actualidad. Recientemente el material ha sido retirado y el edificio está abandonado y en desuso.

2012

CONCURSO INTERNACIONAL DE VIVIENDAS PARA JÓVENES.

CÓRDOBA

EDIFICIO DE VIVIENDAS PARA JÓVENES Edifcio de apartamentos para jóvenes
PANELES.pdf
Documento Adobe Acrobat [2.0 MB]

2011

CONCURSO  EDIFICIO DE 101 VIVIENDAS, GARAJE Y TRASTEROS.

Empresa Municipal de la Vivienda y Suelo, EMVS.

Nuestra Señora de los Ángeles II, Parcela 6.2, Puente de Vallecas.

MADRID.

Portales A,B,C y D.
Planos
Portfolio1.pdf
Documento Adobe Acrobat [893.5 KB]

2009

CENTRO DE EMERGENCIAS

Policía Local, Protección Civil, Cruz Roja y Oficina Judicial.

Edifico situado en la parte alta de la parcela, constituido por tres módulos paralelos. El central con predominio de zonas acristaladas con orientación sur, nexo de unión de los distintos ámbitos, con vistas a un entorno privilegiado constituido por grandes cerros.

 

PLANTA BAJA. Acceso principal al edificio. En el módulo norte, dividido por entrada secundaria, Policía Local y Protección Civil. En el módulo sur, dependencias de Cruz Roja. Una escalera nos conduce a la planta superior.

 

PLANTA PRIMERA.

Dormitorios y vestuarios del personal del centro; Juzgados y sala polivalente.

Versión para imprimir | Mapa del sitio
© ARQUITECTURA & URBANISMO

Llamar

E-mail

Cómo llegar